Description
PARIS 2 – SENTIER – OPPORTUNITE INVESTISSEUR – PLACEMENT STRATEGIQUE A FORT POTENTIEL DE PLUS-VALUE
Nous vous proposons à la vente TROIS appartements actuellement loués, totalisant une superficie de 141 m², idéalement situés au cœur du Sentier, à proximité de la rue des Jeûneurs et de la rue d’Uzès. Ces biens présentent un potentiel attractif pour les investisseurs à la recherche d’un bien avec forte valorisation future.
Détails des biens :
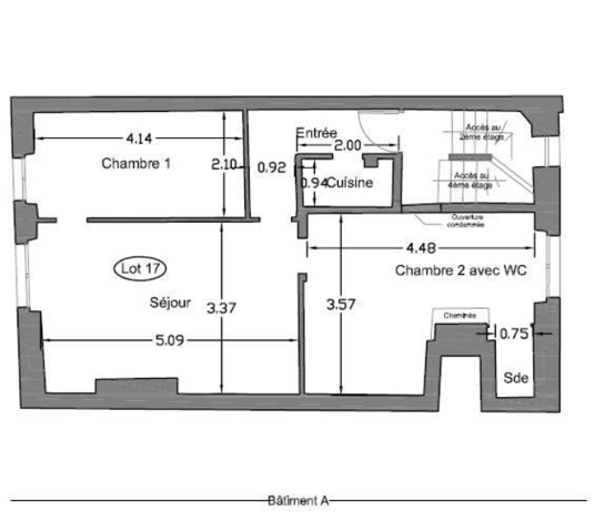
BÂTIMENT A (sur rue) 3ème étage : cuisine, séjour, 2 chambres, salle d’eau avec WC. Superficie de 45 m².
Bien soumis au statut de la copropriété : 1/26 lots. Pas de procédure en cours. Quote-part du budget prévisionnel : 1 130€/an.
BÂTIMENT B (sur cour) 3ème étage : entrée, palier, dégagement, salle d’eau avec WC, cuisine, séjour, chambre et combles. Superficie de 53 m². Bien soumis au statut de la copropriété : 1/26 lots. Pas de procédure en cours. Quote-part du budget prévisionnel : 1 347€/an.
2ème étage : entrée, cuisine, séjour, dégagement, salle d’eau avec WC, chambre. Superficie de 43 m².
Bien soumis au statut de la copropriété : 1/26 lots. Pas de procédure en cours. Quote-part du budget prévisionnel : 1 075€/an.
Informations supplémentaires :
Bien soumis au statut de la copropriété : 3/26 lots. Pas de procédure en cours. Quote-part du budget prévisionnel global : 3 552€/an.
Idéal pour investisseurs à la recherche d’un bien à fort potentiel de valorisation future, idéal recherche de déficit foncier, localisation recherchée. Contactez Gianni AURIEMMA au 06 19 99 63 15 pour plus de détails sur cette opportunité. Estimation confidentielle et gratuite de votre patrimoine disponible sur demande.
Summary
-
Type Apartment
-
Surface 141 m²
-
Prix 648 000€
Location
Details
-
Prix 648 000€
-


