Description
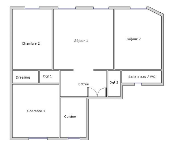
Dans un immeuble ancien très bien tenu, nous vous proposons un appartement de 4 pièces 2 chambres de 82m². Situé au 1er étage, il se compose d’une entrée, d’un double séjour exposé Sud avec charme de l’ancien (parquet, moulures, cheminées) de 35m², de deux chambres de 13m² chacune dont une donnant sur cour, d’une cuisine indépendante, d’une salle d’eau avec WC, et de rangements.
Possibilité de créer une troisième chambre. Double vitrage dans l’appartement. Travaux à prévoir.
Métro Jules Joffrin (L12) ou Guy Moquet (L13). Nombreux commerces et écoles à proximité, présence d’un marché deux fois par semaine à proximité immédiate.
Une cave en sous-sol complète le bien.
Bien soumis au statut de copropriété – 2 lots vendus – Copropriété de 14 lots – Absence de procédure en cours – DPE D
Quote part du budget prévisionnel annuel de 4 523 € / an.
Régis Teffo immatriculé au R.S.A.C. de Paris 814 860 128
Téléphone : 06.66.00.72.60.
Résumé
-
Type Appartement
-
Chambres 2
-
Surface 82.21 m²
-
Prix 787 500€
Localisation
Détails
-
Prix 787 500€
-
-
Taxe foncière 1 430€
-
Nombre de pièces 4
-
Nombre de chambres 2
-
Numéro d'étages 1


