Descrizione
Ligne directe : 01 44 54 12 00
LOCATION MEUBLÉ OU NON-MEUBLÉ. Métro Bibliothèque François Mitterrand – Paris 13ème –
Immeuble neuf de standing livré en 2023 .
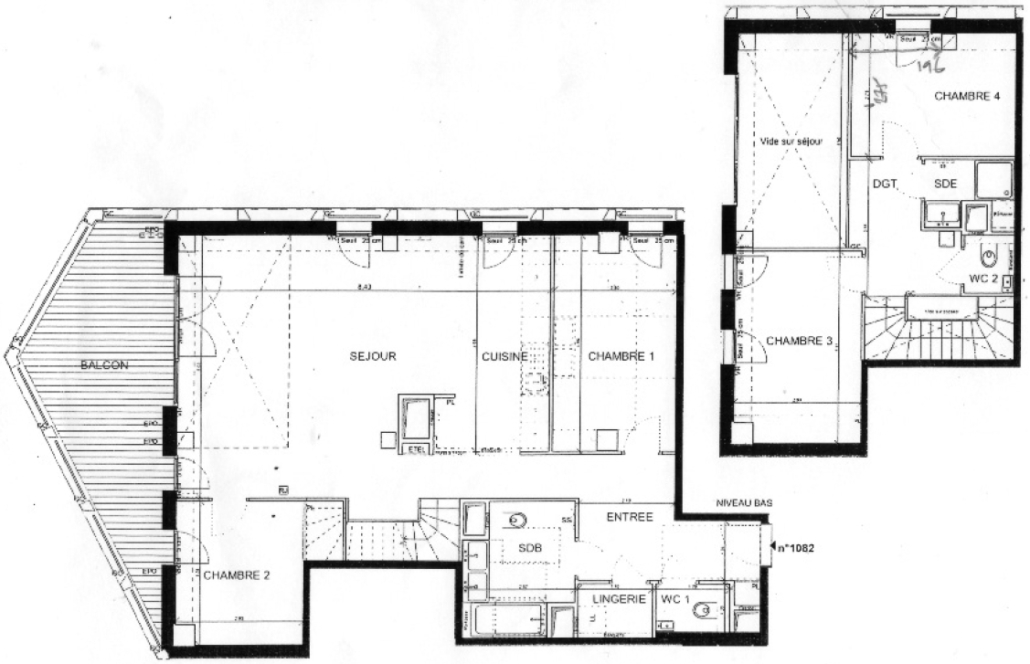
Magnifique appartement duplex niché au 8ème étage avec ascenseur.
Il se compose d’une grande pièce à vivre donnant accès à une belle terrasse exposée Ouest, une cuisine spacieuse ouverte sur le salon entièrement aménagée et équipée d’une plaque de cuisson, d’un four, d’un réfrigérateur américain, d’un congélateur, d’un lave-vaisselle et d’un grand îlot central.
Ce bien vous offre 4 chambres (2 sur chaque niveau) qui disposent toutes d’un placard aménagé.
Vous retrouverez une salle de bains avec wc et un wc indépendant sur le premier niveau. A l’étage une salle d’eau ainsi qu’un wc séparé. Nombreux rangements et une buanderie. Ameublement neuf et de qualité.
LOCATION NON-MEUBÉE POSSIBLE.
Superficie carrez : 129.48m²
Superficie au sol : 149.58m²
Appartement très lumineux exposé Ouest, vue dégagée sans réel vis-à-vis en raison des bureaux qui lui font face.
L’immeuble dispose d’une grande terrasse commune.
Vous bénéficierez de deux places de parking. pour la somme de 220 e charges comprises en sus.
Plan annexé aux photos.
Loyer hors charges : 6 185 euros
Provisions pour charges : 315 euros
Loyer charges comprises : 6 500 euros
DPE réalisé le 5 mai 2023 étiqueté A, la consommation annuelle est estimée entre 460 euros et 670 euros par an. Le logement n’est pas qualifié de logement à consommation excessive.
ERP réalisé le 20 avril 2026.
Les informations sur les risques auxquels ce bien est exposé sont disponibles sur le site www.georisques.gouv.fr
Bail code civil
Honoraires : 4.000 TTC.
Visite virtuelle : https://tour.klapty.com/UFn0ko3HDp/?deeplinking=trueetstartscene=10etstartactions=lookat(42.14,38.26,90,0,0);
Sommario
-
Tipo Appartamento
-
Camere 4
-
Bagno 1
-
Bagno 1
-
Surface 129.48 m²
-
Loyer 6 500€ /mois
Dettagli
-
Loyer 6 500€ / mois CC
-
Provisions sur charges 315€
-
Spese incluse CC
-
Frais agence 4 000€
-
Dépot garantie 12 165€
-
Numero di pezzi 5
-
Numero di camere 4
-
Année de construction 2023
-
Numero di bagni 1
-
Numero di bagni 1
-
Nombre d'étages 12
-
Numéro d'étages 8
-
Cucina Arredata/attrezzata
-
Condominio Sì
-
Procedure non
I vantaggi
-
Ascensore
-
Cantina
-
Codice digitale
-
Parcheggio
Visita virtuale
Diagnosi energetica dell'immobile
Montant estimé des dépenses annuelles d'énergie pour un usage standard entre 460€ et 670€ par an.
Prezzi medi dell'energia indicizzati al 01/01/2021 (abbonamento incluso).


